| ID # | RLS20058785 |
| Szczegóły nieruchomości | 4 sypialnie, 4 łazienki, 2 pół łazienki, wnętrze: 5400 ft2, 502m2 (DOM): 134 days |
| Rok budowy | 1909 |
| Podatki (rocznie) | $28,500 |
| Metro | 4 min: 2, 3 |
| 10 min: B, C, A, D | |
![]() |
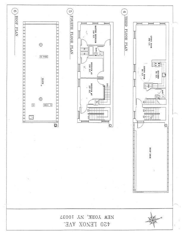
Doskonałe, odrestaurowane przedwojenne townhouse położone w sercu jednej z najbardziej aktywnych i rozwijających się dzielnic Harlemu. Ten czteropiętrowy budynek, o powierzchni ponad 5 400 stóp kwadratowych, przeszedł pełną renowację i jest obecnie całkowicie wynajęty. Zawiera dwa dobrze rozplanowane lokale na parterze, dużą kawalerkę, jasne studio oraz przestronny dwupoziomowy apartament z trzema sypialniami i dwoma łazienkami z prywatnym tarasem. Pełna piwnica dodaje cenną przestrzeń na pranie i przechowywanie.
Położony na żywym rogu z doskonałą widocznością, nieruchomość znajduje się zaledwie krok od ekspresowych linii 2/3, Szpitala Harlem, Centrum Schomburga oraz YMCA w Harlemie. W pobliżu znajdują się Whole Foods, Trader Joe's, Staples oraz Muzeum Studia, a także szeroki wybór pobliskich kawiarni, barów i restauracji.
Z stabilnymi najemcami i adresem w jednej z najbardziej rozwijających się dzielnic Harlemu, ta nieruchomość łączy dochód na bieżąco z potencjałem wzrostu na dłuższą metę - solidna i rzadko spotykana inwestycja w miejscu bogatym w historię i energię.
A well-restored Pre-War townhouse located in the heart of one of Harlem's most active and evolving neighborhoods. This four-story building, comprising over 5,400 square feet, has been fully renovated and is currently fully occupied. It includes two well-proportioned ground-floor units, a large one-bedroom apartment, a bright studio, and a spacious three-bedroom, two-bath duplex with a private terrace. A full basement adds valuable space for laundry and storage.
Located on a lively corner with excellent visibility, the property is steps from the 2/3 express trains, Harlem Hospital, the Schomburg Center, and the Harlem YMCA. Whole Foods, Trader Joe's, Staples, and Studio Museum are all nearby, as are a wide range of neighborhood cafés, bars, and restaurants.
With stable tenancy and an address in one of Harlem's most steadily evolving areas, this property combines immediate income with long-term growth potential - a solid and uncommon investment in a location rich with history and energy.
This information is not verified for authenticity or accuracy and is not guaranteed and may not reflect all real estate activity in the market. © 2026 The Real Estate Board of New York, Inc., All rights reserved.







